
SDD Slot Down Draw Process®
Content:

One method to make ultra thin sheet glass is the down draw or slot down draw method. The method has been first patented in 1925 by Robert M. Corl.
An advanced patent has been made in 1969 by Dr. CarstenEden from Schott Glasin Germany. Several other patents have been applied for following the principles of the slot down draw process
In this method, molten glass is flowing into stirrer or agitator and the glass is drawn downward through a platinum nozzle or slot. It is then drawn downwards into a annealing furnace and being stretched by stretch rollers or catch gear rollers.
By changing the slot, different substrate width and different thicknesses can be produced. It is well suited to thin substrates.

NH Techno, Corning, Nippon Electric Glass and China Optoelectronics have adopted this approach first for producing TFT LCD Fullsheet.
However, this method causes optical surface irregularities in the glass surface created by the touch of the platinum slot. As a result, polishing is required.
However ultra thin glass (≤ 0.2mm) is still produced by this method today, because all other methods can not reduce under 0.3 mm thickness because of unstable process condition.


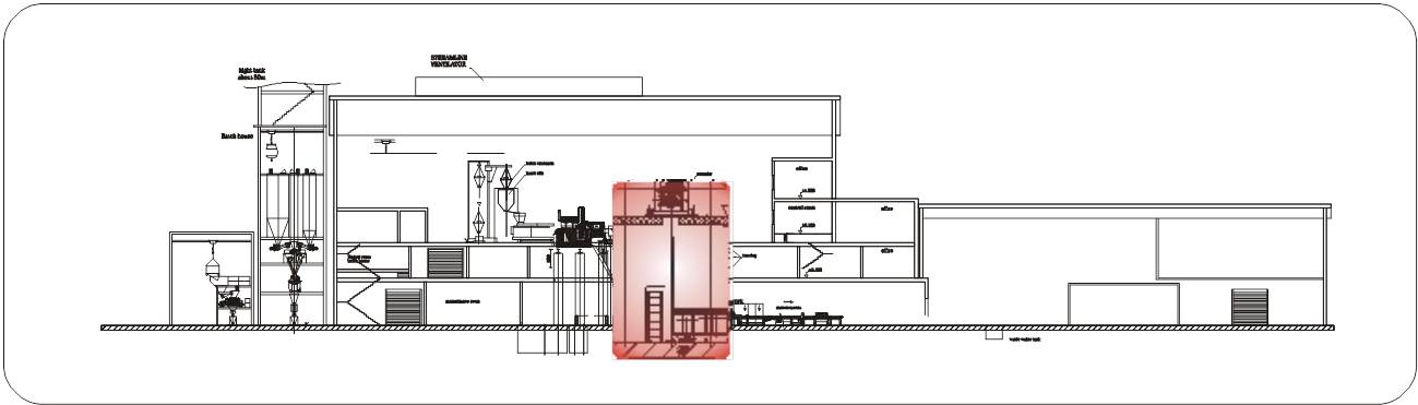
Civil Engineering


Batch house [mixing]
In the Batch House the raw materials are been stored, dosed, weighted and mixed in order to receive the batch for feeding the furnace.

Furnace [melting area]
The furnace is made from special refractory material and has to withstand upto 1650deg C melting temperatures. The modern furnaces compromises oxy fuel firing (mix of oxygen and neutral gas) with additional electric boosting by use of electrodes.

DHPS® Direct Heated Platinum System [conditioning area]
In the DHPS®the glass will be refined with temperatures depending on the glass quality of the furnace. Some refiner are working with temperatures upto 1650degC. However as lower the temperature as longer the lifetime of the platinum system. After the glass is conditioned (refined, stirred and cooled homogenously) it flow into the distributor in which the glass will form a sheet through the forming of the slot.

Distributor and Annealer [forming area]
After the glass is flown into the distributor it will form a sheet to be controlled drawn vertically downwards into the Annealer and be cooled to temperatures of about 700degC. After the annealing of the glass sheet, it will meet the drawing machine, which is responsible for the continuous drawing speed. At this point, the glass sheet will have a temperature of approx. 200~300degC.

BOD Vertical cutting line [cutting area]
The glass flim will be cross cut and further processed in the BOD. After trimming of the edges of the glass sheet, a protective film will cover the glass sheet and it will be unloaded from the line for further processing in the cold end area.

Processing line [Cold end area]
The glass sheet will run through following stations:
